Regent Street, Cambridge, CB2
Letting Fees
Download letting feesDescription
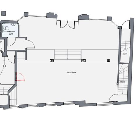
The property forms part of the ground floor of the Regent Aparthotel, an attractive period style property of cavity brick construction, which was refurbished in 2021/22. Accommodation comprises a ground floor showroom with additional raised retail area and WC. There is also a basement, which is currently fitted with storage and additional WC facilities.
The property benefits from very good levels of natural light provided by full height glazing and attractive frontage to depth ratio. The space is currently fitted as a high-quality kitchen showroom, however, due to the flexible nature of the floor plate would be suitable for a wide range of occupiers.
Leasehold
Location
Key property details
- Property type(s)
- Retail
- Tenure details
- Leasehold £48,500 per annum exclusive
- Property agent(s)
- Callum Middleton
- Carter Jonas reference
- 20018339
Description
The property forms part of the ground floor of the Regent Aparthotel, an attractive period style property of cavity brick construction, which was refurbished in 2021/22. Accommodation comprises a ground floor showroom with additional raised retail area and WC. There is also a basement, which is currently fitted with storage and additional WC facilities.
The property benefits from very good levels of natural light provided by full height glazing and attractive frontage to depth ratio. The space is currently fitted as a high-quality kitchen showroom, however, due to the flexible nature of the floor plate would be suitable for a wide range of occupiers.
Leasehold
Location
Key property details
- Property type(s)
- Retail
- Tenure details
- Leasehold £48,500 per annum exclusive
- Property agent(s)
- Callum Middleton
- Carter Jonas reference
- 20018339