Cambridge Road, Sawston, CB22
Letting Fees
Download letting feesDescription
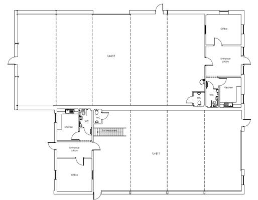
The property consists of two adjoining units constructed with steel portal frames and metal-clad elevations, featuring both pitched and skillion roofs. Each unit benefits from approximately 10% roof light coverage, an electric roller shutter door, an entrance lobby, office space, a kitchenette, and a WC. Unit 1 offers 6 parking spaces, while Unit 2 provides 8 parking spaces. The units can be leased separately or together, offering a self-contained premises.
The units are located on secure estate benefitting from an electrical access gate.
Features at a glance
- Available from July 2025
- Yard and parking provisions
- Available separately or in conjunction
Leasehold
Location
Key property details
- Property type(s)
- General Industrial and Storage & Distribution Research and Labs
- Tenure details
- Leasehold £11.50 per sq ft
- Property agent(s)
- Callum Middleton
- Carter Jonas reference
- 20018444
Description
The property consists of two adjoining units constructed with steel portal frames and metal-clad elevations, featuring both pitched and skillion roofs. Each unit benefits from approximately 10% roof light coverage, an electric roller shutter door, an entrance lobby, office space, a kitchenette, and a WC. Unit 1 offers 6 parking spaces, while Unit 2 provides 8 parking spaces. The units can be leased separately or together, offering a self-contained premises.
The units are located on secure estate benefitting from an electrical access gate.
Features at a glance
- Available from July 2025
- Yard and parking provisions
- Available separately or in conjunction
Leasehold
Location
Key property details
- Property type(s)
- General Industrial and Storage & Distribution Research and Labs
- Tenure details
- Leasehold £11.50 per sq ft
- Property agent(s)
- Callum Middleton
- Carter Jonas reference
- 20018444