Manor Farm, Ledsham, LS25
Description
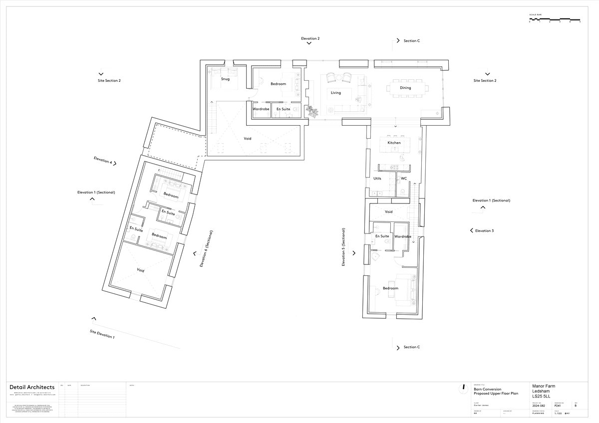
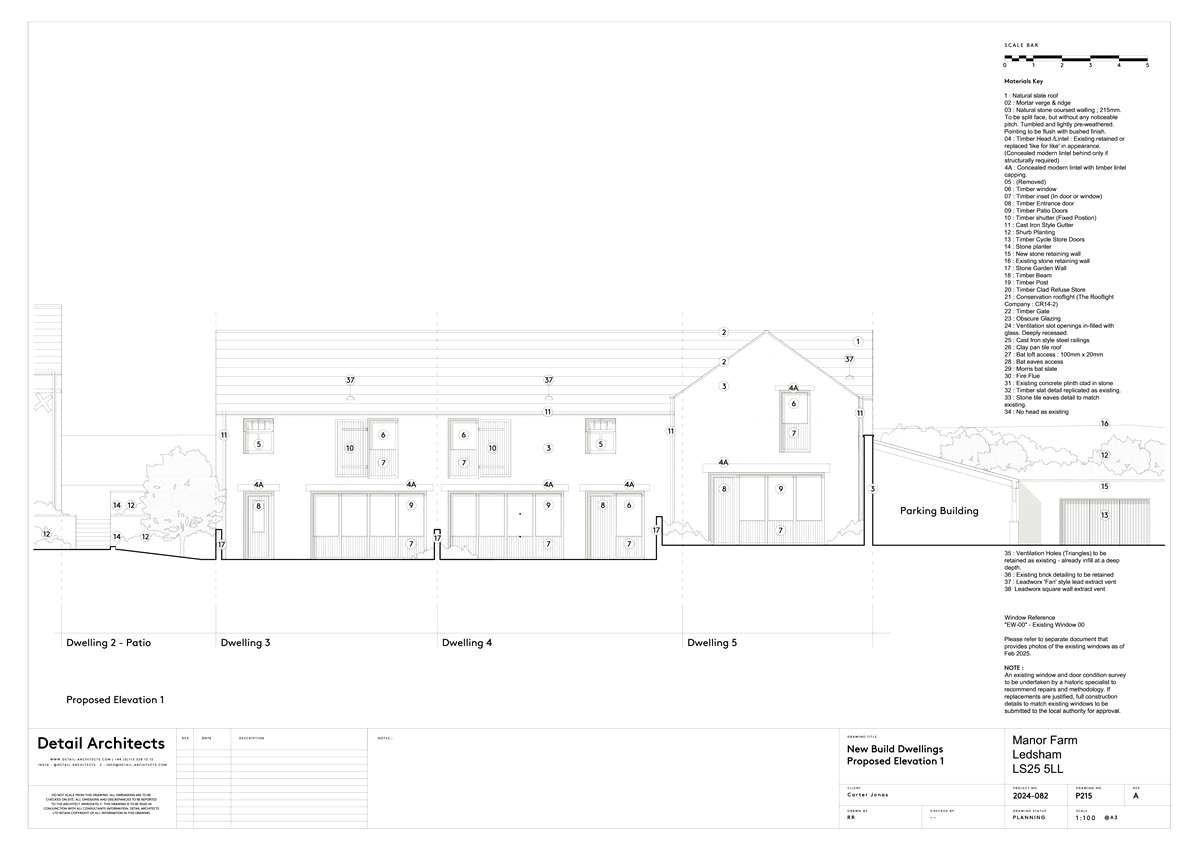
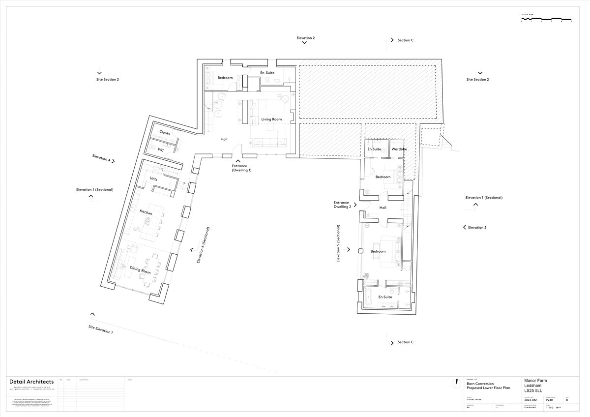
Development opportunities of this nature are few and far between. The sale of Manor Farm with the benefit of detailed planning permission is one of an increasingly rare opportunity to create 5 private residences in what will be a charming enclave of individual houses. Manor Farm occupies a prominent corner position in the village, which is itself, surrounded by lovely open greenbelt countryside. Despite its semi-rural location, Ledsham is well placed for access to principal Yorkshire centres including those of Leeds, Selby, Wakefield, York and Harrogate and is almost equidistant from the A1, M1 and M62 motorways. Ledsham itself has a popular public house, parish church and there is a primary school in the neighbouring village of Ledston. Full planning permission and listed buildings consent was granted by Leeds City Council for Change of use of agricultural land and buildings to C3 residential; conversion of barns to form two dwellings; demolition of modern agricultural buildings and erection of three dwellings and car barn; creation of new access, and hard and soft landscaping scheme on 18th August 2025 Application Number 22/00021/FU. Copies of the decision notices are attached to these sales particulars and a complete set of plans and associated documents are available on the Leeds planning web portal. The proposed dwellings will comprise the following Plot 1 - Barn Conversion with 4 bedrooms and 4 bathrooms - 2,190 square feet/204 square metres. Plot 2 - Barn Conversion with 3 bedrooms and 3 bathrooms - 2,322 square feet/216 square metres. Plot 3 - New Build, End Terrace 3 Bedrooms and 2 bathrooms - 1,146 square feet/106 square metres. Plot 4 - New Build, Inner Terrace 3 Bedrooms and 2 bathrooms - 1,146 square feet/106 square metres. Plot 5 - New Build, End Terrace 3 Bedrooms and 3 bathrooms - 1,235 square feet/115 square metres. Total floor area – 8,039 square feet/ 747 square metres. All 5 dwellings will have the benefit of 2 allocated carport/parking spaces with EV charging points.
Features at a glance
- Prime residential development opportunity
- Detailed consent for five dwellings
- Two conversions and three new build
- In the centre of this sought after village.
- Delightful rural setting
- Easy access to Yorkshire commercial centres
Location
Key property details
- Accessibility
- Ask agent
- Parking
- Ask agent
- Garden
- No
- Carter Jonas reference
- HAR250253
Description
Development opportunities of this nature are few and far between. The sale of Manor Farm with the benefit of detailed planning permission is one of an increasingly rare opportunity to create 5 private residences in what will be a charming enclave of individual houses. Manor Farm occupies a prominent corner position in the village, which is itself, surrounded by lovely open greenbelt countryside. Despite its semi-rural location, Ledsham is well placed for access to principal Yorkshire centres including those of Leeds, Selby, Wakefield, York and Harrogate and is almost equidistant from the A1, M1 and M62 motorways. Ledsham itself has a popular public house, parish church and there is a primary school in the neighbouring village of Ledston. Full planning permission and listed buildings consent was granted by Leeds City Council for Change of use of agricultural land and buildings to C3 residential; conversion of barns to form two dwellings; demolition of modern agricultural buildings and erection of three dwellings and car barn; creation of new access, and hard and soft landscaping scheme on 18th August 2025 Application Number 22/00021/FU. Copies of the decision notices are attached to these sales particulars and a complete set of plans and associated documents are available on the Leeds planning web portal. The proposed dwellings will comprise the following Plot 1 - Barn Conversion with 4 bedrooms and 4 bathrooms - 2,190 square feet/204 square metres. Plot 2 - Barn Conversion with 3 bedrooms and 3 bathrooms - 2,322 square feet/216 square metres. Plot 3 - New Build, End Terrace 3 Bedrooms and 2 bathrooms - 1,146 square feet/106 square metres. Plot 4 - New Build, Inner Terrace 3 Bedrooms and 2 bathrooms - 1,146 square feet/106 square metres. Plot 5 - New Build, End Terrace 3 Bedrooms and 3 bathrooms - 1,235 square feet/115 square metres. Total floor area – 8,039 square feet/ 747 square metres. All 5 dwellings will have the benefit of 2 allocated carport/parking spaces with EV charging points.
Features at a glance
- Prime residential development opportunity
- Detailed consent for five dwellings
- Two conversions and three new build
- In the centre of this sought after village.
- Delightful rural setting
- Easy access to Yorkshire commercial centres
Location
Key property details
- Accessibility
- Ask agent
- Parking
- Ask agent
- Garden
- No
- Carter Jonas reference
- HAR250253