Knowles Brow, Hurst Green, BB7
Description
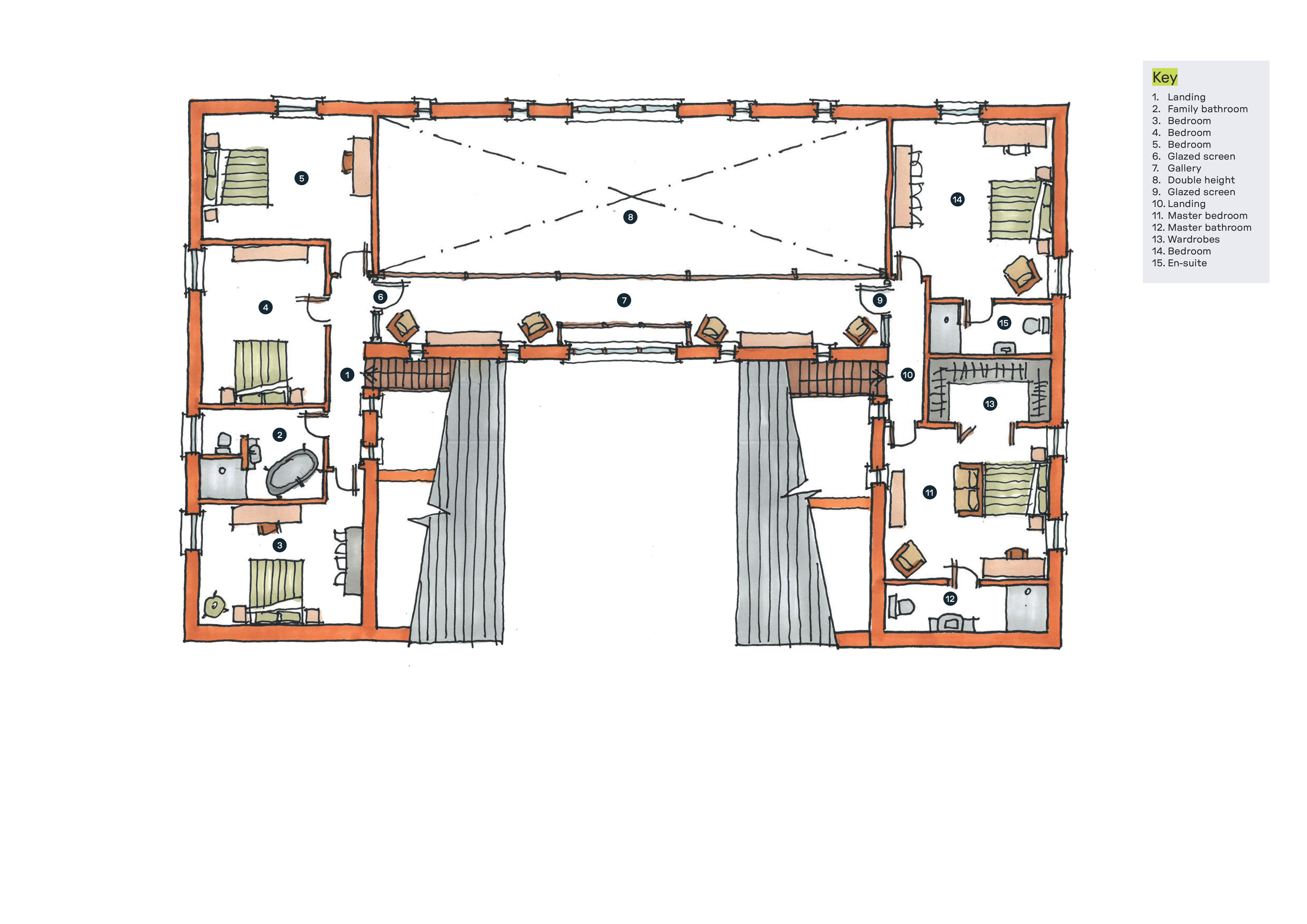
LOCATION New Barn occupies a discreet and little known position, close to Stonyhurst College and just to the east of the popular and sought after village of Hurst Green. It occupies a lovely semi rural setting surrounded by open countryside and woodland. It is however conveniently located with a wide range everyday amenities available in the neighbouring towns of Clitheroe, Whalley and Longridge. GENERAL COMMENTS New Barn is a substantial stone built barn with planning permission granted to convert into 3 properties – 1 x 4 bedroom, 1 x 3 bedroom and 1 x 2 bedroom. In total the barn extends to about 7000 sq ft (650 sqm). The sale represents a fantastic and rare development opportunity in the area. Very few opportunities of the nature are offered to the open market. Whilst currently having planning for 3 units, there may be the potential to convert the barn into a single residence, creating a most spacious, impressive and individual family house.
Features at a glance
- An excellent residential development opportunity
- A substantial detached stone built barn extending to circa 7,000 sqft (650 sqm)
- Planning permission granted for conversion into 3 properties
- Potential to convert the barn into a single residence, creating a most impressive and individual family house
- Lovely setting with far reaching views over the Ribble Valley
- Discreet and little known position, close to Stonyhurst College and just to the east of the popular village of Hurst Green
Location
Key property details
- Accessibility
- Ask agent
- Parking
- Yes
- Garden
- No
- Carter Jonas reference
- HAR250162
Description
LOCATION New Barn occupies a discreet and little known position, close to Stonyhurst College and just to the east of the popular and sought after village of Hurst Green. It occupies a lovely semi rural setting surrounded by open countryside and woodland. It is however conveniently located with a wide range everyday amenities available in the neighbouring towns of Clitheroe, Whalley and Longridge. GENERAL COMMENTS New Barn is a substantial stone built barn with planning permission granted to convert into 3 properties – 1 x 4 bedroom, 1 x 3 bedroom and 1 x 2 bedroom. In total the barn extends to about 7000 sq ft (650 sqm). The sale represents a fantastic and rare development opportunity in the area. Very few opportunities of the nature are offered to the open market. Whilst currently having planning for 3 units, there may be the potential to convert the barn into a single residence, creating a most spacious, impressive and individual family house.
Features at a glance
- An excellent residential development opportunity
- A substantial detached stone built barn extending to circa 7,000 sqft (650 sqm)
- Planning permission granted for conversion into 3 properties
- Potential to convert the barn into a single residence, creating a most impressive and individual family house
- Lovely setting with far reaching views over the Ribble Valley
- Discreet and little known position, close to Stonyhurst College and just to the east of the popular village of Hurst Green
Location
Key property details
- Accessibility
- Ask agent
- Parking
- Yes
- Garden
- No
- Carter Jonas reference
- HAR250162